« One-way slab (simply supported slab) One-way slab connected to a cantilever »

 

Two-way slab

If two beams are added under the free edges of the slab in the previous example, then the slab S1 becomes a two-way slab.


The two-way slab S1 is supported by four beams "project: slabs20"
The two-way slab S1 is supported by four beams "project: slabs20"

The behavior of a two-way slab is similar to that of a one-way slab the only difference is that the former works in both directions.

The reinforcement rules are also similar in both directions.


Behavior of a two-way slab
Behavior of a two-way slab

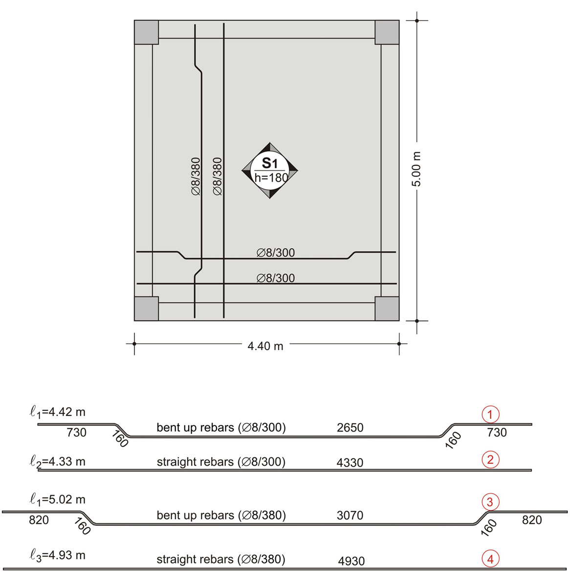
The installer’s formwork drawing of a two-way slab
The installer’s formwork drawing of a two-way slab

 


« One-way slab (simply supported slab) One-way slab connected to a cantilever »